
Prodej bytu 2+1 • 49 m² bez realitky, Bádensko-Württembersko
, Bádensko-WürttemberskoMHD 1 minuta pěšky • ParkováníVyužijte nyní výhod předprodejních cen a ušetřete 30 000 €: rezervujte si byt do 31. 12. 2025 a zajistěte si cenový bonus 235 000 € namísto 265 000 €.
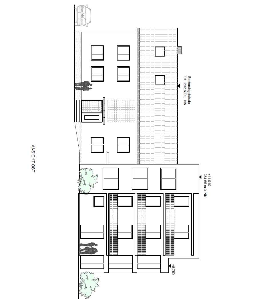
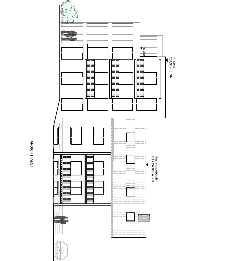
Nepříliš daleko od lázeňského areálu obce Bad Bellingen vzniká, přiléhající ke starší budově, samostatný novostavbový projekt sestávající ze sedmi bytových jednotek. Dva byty, každý v přízemí, prvním a druhém patře, mají obytné plochy mezi 48 m² a 49 m² a sestávají ze dvou místností. Penthouse byt ve třetím patře se vyznačuje další ložnicí a obytnou plochou přes 80 m². Všechny byty díky množství oken od podlahy těží ze světlého a příjemného bydlení. Promyšlený půdorys s otevřeným obývacím, kuchyňským a jídelním prostorem podtrhuje modernost projektu. Koupelny ve všech bytech obsahují bezbariérovou sprchu; u tří orientovaných na východ a u prostorné koupelny v podkroví je navíc okno.
Byty v přízemí jsou bezbariérově přístupné a jsou proto ideální pro seniory. Na velké terase si můžete užívat buď ranní, nebo večerní slunce. Byty ve vyšších patrech jsou dosažitelné po schodišti, přičemž počet schodů je díky malému počtu pater skutečně přehledný. Tyto jednotky mají namísto terasy balkon, penthouse byt dokonce disponuje dvěma balkony.
Bad Bellingen je obec s více než 5 000 obyvateli na severozápadě okresu Lörrach, a tím se nachází přímo na hranici tří zemí – Německa, Francie a Švýcarska. Příjezd na dálnici Bundesautobahn č. 5 je vzdálen pouze 10 minut jízdy, díky čemuž lze města Lörrach dosáhnout za 30 minut, Mulhouse za 40 minut a Basilej rovněž za 30 minut. Basilej je navíc známý mezinárodním letištěm. Dopravní síť doplňují regionální vlaky a expresní spoje na trase Rhein-Tal-Bahn, přičemž má Bad Bellingen také vlastní nádraží.
Od objevení termálních pramenů v padesátých letech minulého století si si obec vybudovala celorepublikovou reputaci lázeňského a turistického střediska. Z toho těží místní ekonomika a infrastruktura obce je značně posílena. V okolí lázeňského parku, který je pěšky dostupný z novostavby a nabízí řadu volnočasových aktivit, jako je oblíbené lázeňské centrum Balinea, bosá stezka, dětské hřiště nebo fitness trasa, se nachází různé obchody denní potřeby, velký supermarket a gastronomické nabídky. Přiléhající proudný Rýn a nedaleký Hertinger Wald navíc rozšiřují přírodní bohatství oblasti.
• Udržitelná stavební koncepce podle energeticky efektivního standardu KfW 40
• Podlahové vytápění ve všech místnostech (vzduch-voda tepelné čerpadlo)
• Moderní koncepce bydlení s otevřenou kuchyní
• Okenní otvory z plastu do podlahy (trojitá zasklení) s elektrickými hliníkovými rolety
• Podlahová krytina: parket v obývacím a ložnicovém prostoru, dlaždice 60×60 cm v koupelně
• Stěnová krytina: malířské vlákno v obývacím a ložnicovém prostoru, dlaždice 60×30 cm v koupelně
• Nadčasový design koupelny s bezbariérovou sprchou, oknem a sanitárním vybavením či armaturami renomovaných značek Duravit a Hansgrohe
V okolí nemovitosti najdete
Stále hledáte to pravé?
Nastavte si hlídacího psa. Nabídky vybrané na míru dostanete souhrnně 1× denně e-mailem. S Premium profilem máte k ruce hlídačů rovnou 5 a když se něco objeví, informují vás obratem.


















