
Prodej bytu 2+1 • 49 m² bez realitky, Bádensko-Württembersko
, Bádensko-WürttemberskoMHD 1 minuta pěšky • ParkováníNyní využijte výhody předprodejní ceny a ušetřete 30 000 €: rezervujte si byt do 31. 12. 2025 a zajistěte si cenu 230 000 € namísto 260 000 €.
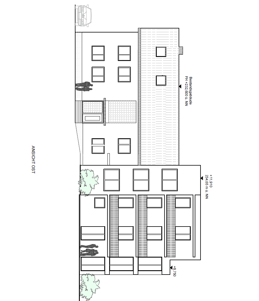
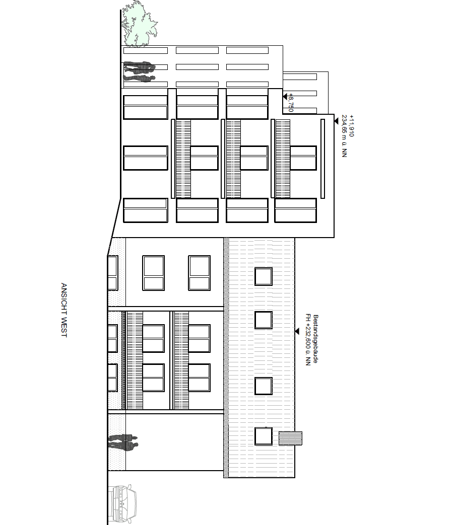
V bezprostřední blízkosti lázeňského parku obce Bad Bellingen se vedle starší budovy rozbíhá samostatný novostavbový projekt sestávající ze sedmi bytových jednotek. Oba byty v přízemí, prvním a druhém patře mají obytnou plochu mezi 48 a 49 m² a skládají se ze dvou místností. Penthouse v třetím patře se vyznačuje dalším ložnicovým prostorem a obytnou plochou přes 80 m². Všechny byty těží z velkého počtu podlahových oken, která zajišťují světlé a příjemné bydlení. Promyšlené dispozice s otevřeným obývacím, kuchyňským a jídelním prostorem zdůrazňuje modernost projektu. Koupelny ve všech bytech disponují bezzdvižnou sprchou; u tří bytů směřujících na východ a u velkého bytu v půdním podlaží je tato sprcha navíc opatřena oknem. Byty v přízemí jsou přístupné bez bariér, a proto jsou ideální i pro páry seniorů. Na prostorné terase si můžete vychutnat buď ranní, nebo večerní slunce. Byty v patrech nad přízemím jsou dosažitelné po schodišti, přičemž počet schodů je vzhledem k malému počtu pater poměrně nízký. Tyto jednotky mají místo terasy balkon, a penthouse má dokonce dva.
Obec Bad Bellingen s více než 5 000 obyvateli se nachází na severozápadě okresu Lörrach, tedy přesně v trojmezí Německa, Francie a Švýcarska. Příjezd na spolujezdní silnici – německou dálnici č. 5 – trvá pouhých 10 minut, díky čemuž lze město Lörrach dosáhnout za 30 minut, Müllhausen za 40 minut a Basilej rovněž za 30 minut. Basilej je navíc všeobecně známý díky svému mezinárodnímu letišti. Dopravní síť je dále zajištěna regionálními a expresními vlaky na trase Rheintalschiene, přičemž samotná obec Bad Bellingen má vlastní nádraží.
Od objevení termálních pramenů v padesátých letech minulého století si si obec vybudovala jméno lázeňského a turistického střediska s regionálním dosahem. Z toho výrazně těží místní ekonomika, což se pozitivně odráží i na infrastruktuře obce. V okolí lázeňského parku, který je dosažitelný pěšky z novostavby a nabízí řadu volnočasových aktivit – například oblíbené termální lázně Balinea, cestičku naboso, dětské hřiště nebo fitness okruh – se nachází řada obchodů denní potřeby, velký supermarket a pestrá nabídka gastronomických zařízení. Přilehlý řeka Rýn a nedaleký Hertinger les ještě více rozšiřují přírodní bohatství této lokality.
• Udržitelná výstavba podle energeticky efektivního standardu KfW 40
• Podlahové topení ve všech místnostech (vzduch-voda s tepelným čerpadlem)
• Moderně navržený obytný koncept s otevřenou kuchyní
• Podlahová plastová okna (trojsklená) s elektrickými hliníkovými rolety
• Podlahová krytina: parketové podlahy v obytných a ložnicových prostorách a dlaždice 60×60 cm v koupelnách
• Stěnová krytina: malířské textilie v obytných a ložnicových prostorách a dlaždice 60×30 cm v koupelnách
• Nadčasový design koupelny s bezzdvižnou sprchou, oknem a sanitárním vybavením či armaturami renomovaných značek Duravit a Hansgrohe
V okolí nemovitosti najdete
Stále hledáte to pravé?
Nastavte si hlídacího psa. Nabídky vybrané na míru dostanete souhrnně 1× denně e-mailem. S Premium profilem máte k ruce hlídačů rovnou 5 a když se něco objeví, informují vás obratem.


















