
Prodej bytu 2+1 • 49 m² bez realitky, Bádensko-Württembersko
, Bádensko-WürttemberskoMHD 1 minuta pěšky • ParkováníVyužijte nyní výhodu akční ceny pro první zájemce a ušetřete 30.000 €: rezervujte si byt do 31.12.2025 a zajistěte si cenovou výhodu 240.000 € namísto 270.000 €.
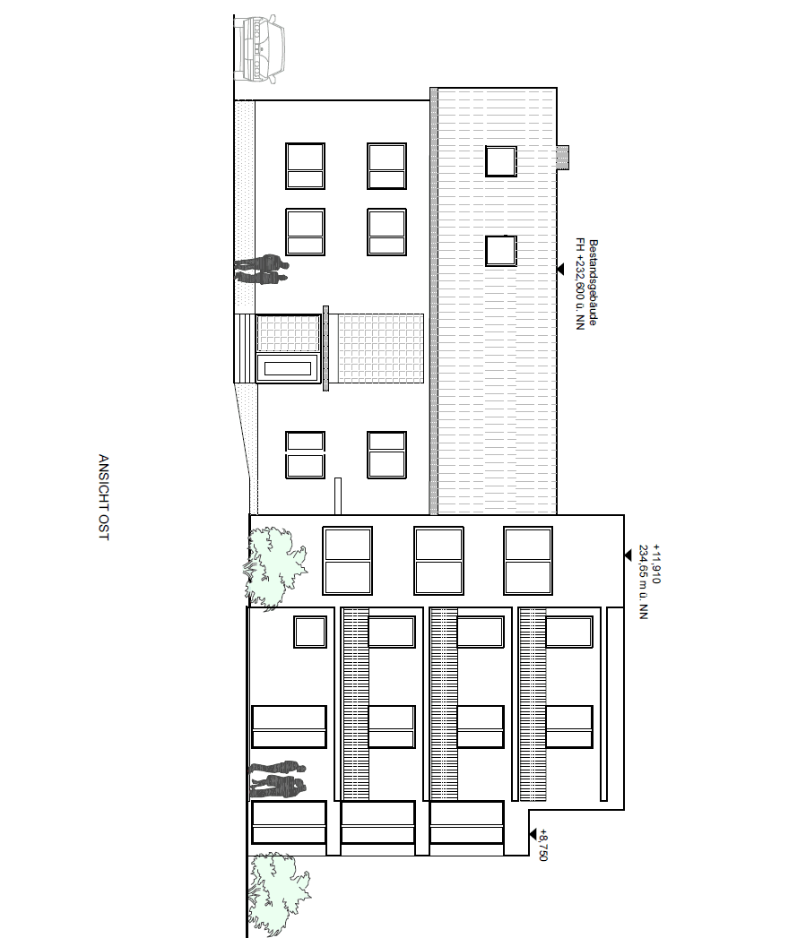
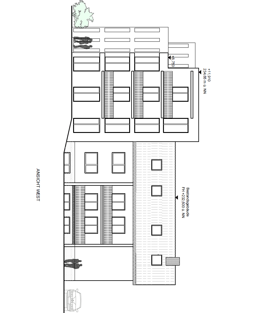
V blízkosti areálu lázeňského parku obce Bad Bellingen vzniká vedle staršího stavebního objektu samostatný nový projekt sestávající ze sedmi bytových jednotek. Obě byty v přízemí, prvním patře a druhém patře mají obytnou plochu mezi 48 m² a 49 m² a dvě pokoje. Penthouse byt ve třetím patře se vyznačuje další ložnicí a obytnou plochou přesahující 80 m². Všechny byty díky množství oken od podlahy ke stropu nabízejí světlé a příjemné bydlení. Promyšlený půdorys s otevřeným obývacím, kuchyňským a jídelním koutem podtrhuje modernost celého projektu. Koupelny všech bytů jsou vybaveny bezzdvižnou sprchou – u tří bytů s orientací na východ je okno a u prostorné koupelny na podkroví je okno součástí vybavení. Byty v přízemí jsou bezbariérově přístupné, a tudíž jsou ideální zejména pro seniory. Na velké terase si můžete vychutnat buď ranní, nebo večerní slunce. Byty v patrech jsou přístupné přes schodiště, přičemž počet schodů je vzhledem k malému počtu pater velmi přehledný. Místo terasy mají tyto jednotky balkon, přičemž penthouse byt dokonce disponuje dvěma balkony.
Bad Bellingen je obec s více než 5 000 obyvateli nacházející se na severozápadě okresu Lörrach – přímo v tzv. trojmezí Německo-Francie-Švýcarsko. Příjezd na dálnici Bundesautobahn č. 5 je vzdálen pouhých 10 minut jízdy, díky čemuž lze za 30 minut dojet do Lörrachu, za 40 minut do Mülhausenu a Basilej je dosažitelná také do 30 minut. Basilej je navíc známý svým mezinárodním letištěm. Dopravní síť doplňují regionální vlaky a expresní spoje na trase Rheintalschiene, přičemž Bad Bellingen disponuje i vlastním nádražím.
Od objevení termálních pramenů v 50. letech minulého století se si obec získala nadregionální pověst lázeňského a turistického střediska. Místní ekonomika a infrastruktura z toho výrazně těží. V okolí lázeňského parku, který je pěšky dosažitelný z novostavby a nabízí řadu volnočasových aktivit – například oblíbené termální lázně Balinea, bosou stezku, dětské hřiště či fitness dráhu – se nachází řada obchodů denní potřeby, velký supermarket a pestrá nabídka gastronomických zařízení. Přilehlý řeka Rýn a nedaleký Hertinger les dále rozšiřují bohatství přírody.
• Udržitelná výstavba podle energeticky efektivního standardu KfW 40
• Podlahové vytápění ve všech místnostech (vzduch-voda s tepelným čerpadlem)
• Moderně navržený bytový koncept s otevřenou kuchyní
• Plastová okna od podlahy ke stropu (trojsklo) s elektricky ovládanými hliníkovými rolety
• Podlahová krytina: parketová podlaha v obývacím a ložnicovém prostoru a dlaždice 60×60 cm v koupelně
• Obklad stěn: malířská textilie v obývacím a ložnicovém prostoru a dlaždice 60×30 cm v koupelně
• Nadčasový design koupelny s bezzdvižnou sprchou, oknem a sanitárním vybavením či armaturami renomovaných firem Duravit a Hansgrohe
V okolí nemovitosti najdete
Stále hledáte to pravé?
Nastavte si hlídacího psa. Nabídky vybrané na míru dostanete souhrnně 1× denně e-mailem. S Premium profilem máte k ruce hlídačů rovnou 5 a když se něco objeví, informují vás obratem.


















