
Prodej bytu 2+1 • 49 m² bez realitky, Bádensko-Württembersko
, Bádensko-WürttemberskoMHD 1 minuta pěšky • ParkováníVyužijte nyní výhodnou cenu Early Bird a ušetřete 30 000 €: rezervujte si byt do 31. 12. 2025 a zajistěte si cenovou výhodu 235 000 € místo 265 000 €.
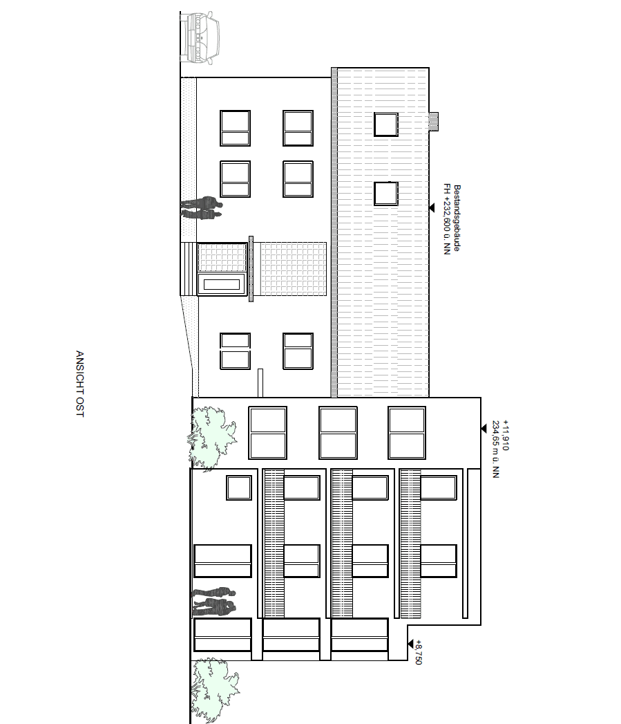
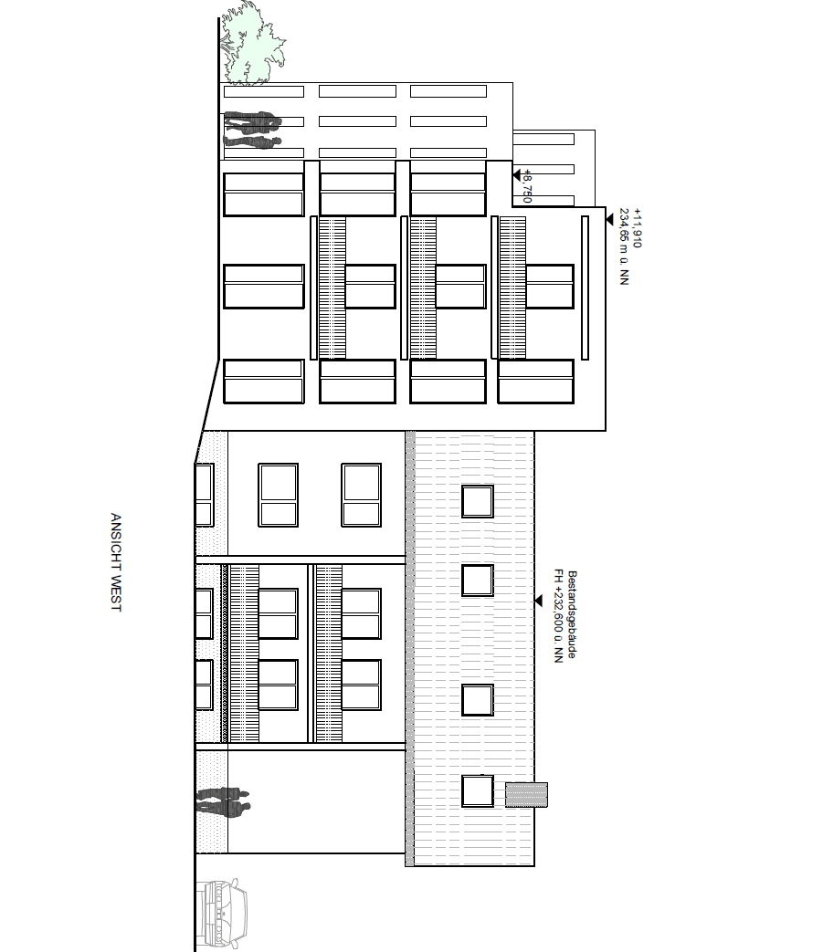
Nedaleko areálu lázeňského parku obce Bad Bellingen vzniká přiléhající k starší budově samostatný novostavbový projekt sestávající ze sedmi bytových jednotek. V přízemí, v prvním i druhém patře se nacházejí dva byty s obytnou plochou mezi 48 m² a 49 m² a se dvěma pokoji. Penthouse byt ve třetím patře se vyznačuje další ložnicí a obytnou plochou přes 80 m². Všechny byty těží z hojného množství podlahových oken, díky kterým je obytné prostředí světlé a příjemné. Promyšlená dispozice s otevřeným obývacím, kuchyňským a jídelním prostorem podtrhuje modernost celého projektu. Koupelny ve všech bytech jsou vybaveny bezbariérovou sprchou – u tří z nich s orientací na východ a u velké koupelny v podkroví navíc s oknem. Byty v přízemí jsou bezbariérově přístupné a proto jsou ideální pro seniorská páry. Na velké terase lze vychutnat jak ranní, tak i večerní slunce. Byty v horních patrech jsou přístupné schodištěm, přičemž počet schodů je vzhledem k nízkému počtu pater velmi přehledný. Tyto jednotky mají místo terasy balkon, přičemž penthouse byt disponuje dokonce dvěma balkony.
Bad Bellingen je obec s více než 5 000 obyvateli v severozápadní části okresu Lörrach a leží přímo na pomezí Německa, Francie a Švýcarska. Vjezd na dálnici Bundesautobahn č. 5 je vzdálen pouhých 10 minut jízdy, což umožňuje dojet do Lörrach za 30 minut, do Mulhouse za 40 minut a Basel rovněž za 30 minut – Basel navíc disponuje mezinárodním letištěm. Dopravní síť doplňují regionální vlaky a expresní spoje podél železniční tratě v údolí Říny, přičemž Bad Bellingen má své vlastní nádraží.
Od objevení termálních pramenů v 50. letech 20. století si se obec vybudovala celostátní pověst lázeňského a turistického střediska, z čehož těží i místní ekonomika a infrastruktura. V okolí lázeňského parku, který je dosažitelný pěšky z novostavby a nabízí řadu volnočasových aktivit – jako jsou oblíbené termální lázně Balinea, bosonohá stezka, dětské hřiště nebo fitness parcours – se nachází mnoho obchodů denní potřeby, velký supermarket i kulinářské gastronomické nabídky. Přiléhající Rýn a nedaleký Hertinger Wald navíc rozšiřují přírodní bohatství oblasti.
• Udržitelná výstavba podle energeticky efektivního standardu KfW 40
• Podlahové vytápění ve všech místnostech (vzduch-voda tepelné čerpadlo)
• Moderně navržený obytný koncept s otevřenou kuchyní
• Podlahová plastová okna (trojitě zasklená) s elektrickými hliníkovými rolety
• Podlahová krytina: parketová podlaha v obývacím a ložnicovém prostoru a dlaždice 60x60 cm v koupelně
• Stěnová úprava: malířská textilie v obývacím a ložnicovém prostoru a dlaždice 60x30 cm v koupelně
• Nadčasový design koupelny s bezbariérovou sprchou, oknem a sanitárním vybavením či armaturami renomovaných firem Duravit a Hansgrohe
V okolí nemovitosti najdete
Stále hledáte to pravé?
Nastavte si hlídacího psa. Nabídky vybrané na míru dostanete souhrnně 1× denně e-mailem. S Premium profilem máte k ruce hlídačů rovnou 5 a když se něco objeví, informují vás obratem.


















